Praxis oder Büro | ca. 300 m² in Gelsenkirchen-Horst | anpassbar an Ihre Bedürfnisse

Eckdaten zur Immobilie

Objekt-ID
G2172
Objektart
Büros/Praxen
Lage
45899 Gelsenkirchen
Bürofläche ca.
300,00 qm
Kaltmiete
3.000,00 €
Gesamtmiete (netto)
3.000,00 €
Warmmiete
3.750,00 €
Nebenkosten
750,00 €
Baujahr
1976
Courtage (außen)
2,38 Monatsnettokaltmieten inkl. der 19% MwSt

Weitere Angaben

Bauweise
Massiv
Zimmer
10
Energieausweis
Ja
Typ
Verbrauchsauweis
Kennwert
kWh
Energieeffizienzklasse
G
Gültig bis
27.06.2033

Beschreibung

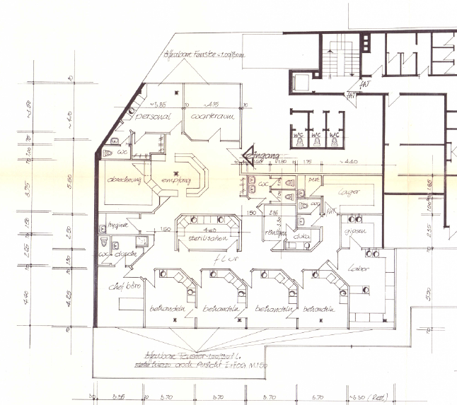
Diese ca. 300 m² große Gewerbefläche im 1. Obergeschoss eines Wohn- und Geschäftshauses in Gelsenkirchen-Horst steht ab sofort zur Miete. Sie wurde zuletzt als Zahnarztpraxis genutzt und eignet sich ideal für eine Praxis- oder Büronutzung, aber auch andere Konzepte sind möglich. Der Zugang erfolgt über einen Personenaufzug, jedoch sind zwei Treppenpodeste mit jeweils vier bis fünf Stufen zu überwinden. Die Aufteilung umfasst einen großzügigen Empfangsbereich mit Platz für eine große Empfangstheke, ein abgeschlossenes Wartezimmer mit ca. 16 m² sowie einen separaten Personalraum mit eigenem Sanitärbereich. Ein zusätzlicher Raum mit ca. 12 m² diente zuletzt der Abrechnung und Buchhaltung. Das als Chefbüro vorgesehene Zimmer bietet auf ca. 16 m² eine eigene Dusche und Toilette. Vier Behandlungsräume mit jeweils ca. 15 m² verfügen über Druckluft- und Wasseranschlüsse, alle Räume sind durch die zahlreichen Fenster lichtdurchflutet. Ergänzt wird die Fläche durch einen offen gestalteten Sterilisationsbereich, ein Labor mit ca. 25 m², einen Lagerraum, einen 5 m² großen Gipsraum sowie einen Röntgenbereich mit eigener Umkleidekabine. Zudem gibt es einen unreinen Raum und fünf Patienten-WCs. Aufgrund der schlechten Lichtverhältnisse wurden nicht alle Räume fotografiert. Wir möchten darauf hinweisen, dass die Fläche renovierungsbedürftig ist – dessen sind wir uns bewusst. Gespräche mit dem Eigentümer über gemeinsame Renovierungsideen sind möglich und können individuell abgestimmt werden. Auch wenn die Fläche bereits optimal für eine medizinische oder therapeutische Nutzung vorbereitet ist, sind andere Nutzungskonzepte durchaus denkbar. Wir freuen uns auf Ihre Ideen und darauf, Ihre Visionen für diese Immobilie kennenzulernen!

Kontakt

Nina Demaeght-Klump

Tel. 00492093851282

anfragen@vbim-immobilien.de

Impressum

Bild Nina Demaeght-Klump
Anschrift

Volksbank Immobilien

Rhein-Ruhr GmbH

Breddestr. 8

45894 Gelsenkirchen

Kontakt

info-@-vbim.de

Telefon +49 (0) 209 385 - 1284

Telefax +49 (0) 209 385 - 1288

Logo Volksbank Immobilien Rhein-Ruhr Volksbank Ruhr Mitte Logo Volksbank Rhein-Ruhr Logo VIV Volksbank Immobilien Verwaltung
Kontakt