Renditestarkes Investment

Eckdaten zur Immobilie

Objekt-ID
G2312
Objektart
Anlageobjekt
Lage
45896 Gelsenkirchen
Wohnfläche ca.
164,00 qm
Gesamtfläche ca.
385,93 qm
Kaufpreis
310.000,00 €
Baujahr
1970
Courtage (außen)
3,57 % einschließlich der gesetzlichen Mehrwertsteuer

Weitere Angaben

Grundstücksfläche
395,00 qm
Heizungsart
Fernwärme
Bauweise
Massiv
Stellplätze
3
Energieausweis
Ja
Typ
Bedarfsauweis
Endenergiebedarf
180.49 kWh
Energieeffizienzklasse
F
Gültig bis
31.08.2035

Beschreibung

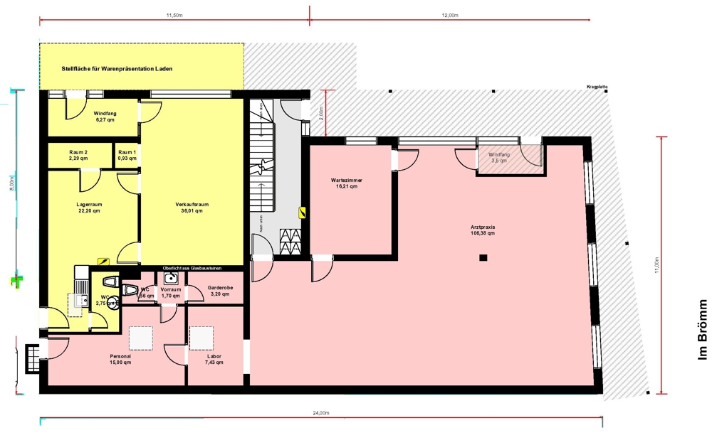
Zum Verkauf steht ein kleines Wohn- und Geschäftshaus in ruhiger, verkehrsberuhigter Lage im Gelsenkirchener Stadtteil Scholven. Das Gebäude verbindet Wohnen und Gewerbe und bietet eine interessante Mischung aus soliden Mieteinnahmen und weiterem Entwicklungspotenzial. Im Erdgeschoss befindet sich eine ca. 151 m² große Hausarztpraxis, deren Mietvertrag langfristig bis Ende 2030 verlängert wurde. Nebenan liegt ein ca. 70 m² großes Ladenlokal, das aktuell als Lebensmittelgeschäft genutzt wird. Die Wohnflächen verteilen sich auf eine ca. 101 m² große Wohnung sowie auf eine ca. 63 m² große Wohnung, die 2015 vollständig modernisiert wurde; beide Wohnungen sind derzeit vermietet. Ergänzt wird das Objekt durch drei Garagen, die zusätzliche Einnahmemöglichkeiten eröffnen.

Lage

Das angebotene Wohn- und Geschäftshaus befindet sich in gefragter Lage im nördlichen Stadtteil Scholven – einem traditionellen, gewachsenen Quartier von Gelsenkirchen mit starker Verwurzelung in der Region und solider Mieternachfrage. Alle Einrichtungen des täglichen Bedarfs – darunter Supermärkte, Apotheken, Schulen und Kitas – befinden sich im nahen Umfeld. Das Objekt profitiert von einer verkehrsgünstigen Lage mit schneller Anbindung an die B226 sowie an die Autobahnen A2 und A52. Die Zentren von Gelsenkirchen-Buer, Gladbeck und Bottrop sind in wenigen Fahrminuten erreichbar. Auch der öffentliche Nahverkehr ist fußläufig gut angebunden.

Kontakt

Thomas Loch

Tel. 00492093851824

anfragen@vbim-immobilien.de

Impressum

Bild Thomas Loch
Anschrift

Volksbank Immobilien

Rhein-Ruhr GmbH

Breddestr. 8

45894 Gelsenkirchen

Kontakt

info-@-vbim.de

Telefon +49 (0) 209 385 - 1284

Telefax +49 (0) 209 385 - 1288

Logo Volksbank Immobilien Rhein-Ruhr Volksbank Ruhr Mitte Logo Volksbank Rhein-Ruhr Logo VIV Volksbank Immobilien Verwaltung
Kontakt